Having now looked into the AI tool MidJourney I have a few opinions on what impact it might have on architectural design and the careers of architectural designers. I don’t mind saying that MidJourney is a better artist than me. When it comes to generating novel and interesting shapes and patterns for buildings. It beats me hands down.
And what this for me brings to mind is a tweet I saw a few years ago. It said something like ‘the way a building functions should be more important than how it looks’. It was stating that in the current architecture design industry too much focus is put on how buildings look. Young architectural designers focus too much on coming up with novel, interesting shapes and forms and patterns. Perhaps MidJourney is the end for this style of contemporary designing architecture methods.
So what comes after; I think it is something like a deeper focus on the function of architecture rather than the look of architecture. Instead of this being the end of the architectural design profession, it is just changing it. It is saying ‘drop by the way side’ this over fascination with form and focus more on improving the functional performance of architecture. Something MidJourney isn’t good at.
Yes MidJourney is great at architectural concept design but it has limited other abilities within the architecture profession. Below are some examples of architectural design problems MidJourney can’t solve.
Construction details – Mid Journey can not solve construction detailing problems. Since it does not not know/understand what the lines shapes it is generate do. It can’t even guess at a suitable matching solution. (Top image is Mid Journey AI – Bottom image is Human)


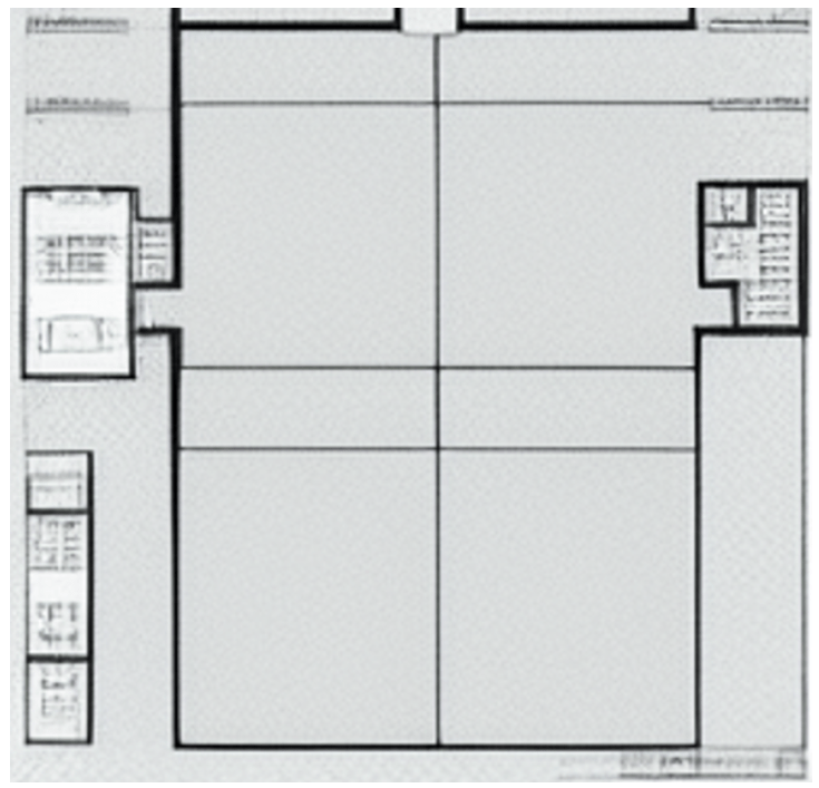
Layout plans – Sure you can type ‘architectural plan drawing’ as a prompt and a get back a series of interesting layout plans but there is not ability to control the generation of these plans and thus they will not be very useful. Perhaps only helpful in a inspiration sense. Please see below a plan generated by MidJourney that is not very useful. (Top image is Mid Journey AI – Bottom image is Human)


Functional Passive Environmental Design Strategies – Generating novel ways to cool, heat and ventilate our buildings should be what we are focusing our efforts in at this point not creating ‘cool’ shaped buildings. Again in this realm Mid Journey can provide minimal if any help. (Top image is Mid Journey AI – Bottom image is Human)


Creating geometrically consistent 3D geometry models – The output of MidJourney are 2D images but Architecture is 3D. I have seen some attempts to generate 3D models using depth fields, but they don’t look very successful. I think it would be a good idea for young Architectural Designers to try and model some of these MidJourney outputs in Blender3D. Again though the output of MidJourney is not a coordinated 3D form and I don’t believe the technology behind MidJourney could be used to create 3D consistent/coordinated models. This is because I don’t believe a large enough data set of consistent 3D models exists yet.

Arguably these problems and others are more important to architecture and society than how a building looks. And I hope less able to be automated by machine learning.
