2003 – 2005
University of the West of England
I started my Architectural education in Bristol at UWE on the Architectural Technology program. I was lucky here to be taught by a faculty who were keen and knowledgable about sustainable design. The design you see below incorporates many sustainable design principles such as passive ventilation, using exposed mass to cool the space and careful control of day light / sunlight to passively light spaces.
2005 – 2006
Narracott Oxford Mills Architects Bristol
After completing two years of the Architectural Technology degree program I left to start working in an Architect’s office in Bristol. I learnt many different softwares whilst here including Sketchup and an Apple computers based CAD/Drawing software. It was a good first job to get because I worked on many different projects.
2006 – 2007
1st Year University of East London
Following a year working in Bristol I restarted my University studies this time at the University of East London in the Docklands. In the first year there I learnt lots of new software such as Rhino which I used to produce the design shown below. Since I had been taught structural design principles on the AT program at Bristol I always designed a structure for my proposals at UEL.
Summer 2007
Slider Studio Ltd, London
Between the first and second years at UEL I was very lucky to find a summer job at an Architect’s office based on the UEL campus. While I worked here, I completed a report for the Shell Step placement program. I also helped produce the design submission for the Europan Housing design competition.
2007 – 2008
Final Year University of East London
Following that summer work placement I returned to UEL to complete the final year of my BSc Architecture degree. The brief for the final design project was to help this run-down seaside town regenerate itself. I came up with the idea of creating a restaurant and culinary school so that the town might attract visitors from near-by London. My dissertation on the topic of the relationship between Language and Architecture acheived the second highest grade of the year.
2008/09 – 2009/03
Masters at University of Huddersfield (Uncompleted)
I graduated from UEL in 2008 at the very onset of the ‘Great Recession’ so unfortunately I was unsuccessful to gain a part 1 placement. So I decided to start my masters course early. I was accepted onto the course due to the fact I had earlier work experience from Bristol and London. I chose to leave the course early because I was eager to get working and I had been made aware of opportunities in the Far East. I did however complete many design projects in my short time here as can been seen in images below. The tower shown below incorporated a passive stack ventilation sustainable design strategy. Some of my most creative design proposals are from my time here in Huddersfield.
2009/10 – 2010/02
English Teacher China, Xi’an, China
I have an older brother who had been working in China for a few years. I went on holiday to visit him and he suggested I would be able to find Architecture work in China so I decied to try. To begin I found an English teaching contract for 3 months, in the hope to establish a foothold for my architectural career in a country buzzing with excitement in the Architecture, Engineering, and Construction (AEC) sector. This experience significantly enhanced my sketching, presentation skills, and confidence, offering a valuable glimpse into the thriving architectural landscape of China.
2010/02 – 2010/03
HLH Reception Area, Freelance Design Project
After arriving in China and working as an English teacher for a couple of months. I was contacted by my older brother to design a reception space for the company he was managing in the south of China, in ShenZhen. I produced designs using the SketchUp 3D modelling software and delivered the proposals as cleaned up SketchUp files. The client was used to dealing with 3D content and sending the 3D models was the best way for them to understand the design proposals.
2010/03 – 2010/07
Atlier 100s +1, Beijing, China
I worked as an English teacher for only 3 months in the city of Xi’an. After this time I was very keen to find an Architecture job. To achieve this I had to move to the capital Beijing. I found work at a small local practice with primary focus on high end residential and they had also designed a few Art Galleries. I produced a lot of design concepts here and also presented many PowerPoint presentations on various topics as part of the firms company ethos of sharing design opinions. I first saw and began to learn Grasshopper3D here.
2010/10 – 2011/10
Aedas Architects, Beijing, China
I worked at Atlier 100s+1 for only a short time before switching to a larger firm called Aedas. In some ways this was a better fit for me. Though I didn’t do as mush conceptual design work while I worked here, I learnt Revit and began to use Rhino/Grasshopper professionally. I helped colleagues learn about Grasshopper3D. I also helped produce the document shown below. I had a great time working here, I used to commute to the office by bike. Beijing is a flat city so the cycle is a great way to get around. My colleagues here were great and I had a manager that really helped me learn the ropes of professional practice.
2011/08 – 2011/09
Grasshopper Tutor, QingHua University, Beijing, China
When I was working at Aedas in thier Beijing office, I helped colleagues teach Grasshopper3D at QingHua University Summer School. I was still getting used to the software myself but together with my Aedas collegues we ensured our cohort of students learnt the basics of Grasshopper3D.
2012 – 2013
Masters Leeds Beckett University
I began a masters course at Leeds Beckett University following my return from China. I did not complete the course.
2013/10 – 2013/12
Smith Smalley Architects Ltd, Harrogate
I returned to the UK in 2012 and I was keen to start working in Architecture again. My first opportunity came when I secured a contract placement at an Architects in Harrogate. I completed a few weeks work here in two different slots. They used Microstation which I had learnt at UEL.

2013/12 – 2014/07
HLH Prototypes, U.K. Sales Agent, Leeds
Though the above architecture contract work did not lead to a permanent position with the firm, I soon found a permanent position in an alternative industry. I began work as a UK sales agent for a Chinese prototyping company. During my time there I produced many different types of marketing materials, including HTML emails.
2013 – 2014
Artworth LampShades Freelance
During my time working for HLH. I was asked by their sister company to design some lampshades that could be 3D Printed. I used Rhino/Grasshopper to generate some cool looking concepts.
2015 – 2016
HLH Prototypes Dong Guan HG, Office Fitout Design Project
My older brother at this time was still working for the Chinese prototyping company that I had completed a reception area design for, when I was also in China. This company now headed by my brother was moving to a new HQ in the new factory building. I was asked to complete a set of fit out drawings for the HQ office spaces. I worked alongside a Russian CG artist to produce the realistic visuals of the proposals. I worked closely with the client, my brother, to produce an office layout that worked for the firm.
2015 – 2016
HLH Office Fitout Furniture Design
For the above HQ office fitout project. I also produced designs for custom pieces of reception and dsiplay area furniture. Sadly none of my designs were actually built, but still I had a good time designing them and I got complimented on their attractiveness.
2014/07 – 2018/04
HGP Architects, Leeds Office, Architectural Assistant
In 2014 I gained a full time Architectural job at HGP, in Leeds. It was with a firm whose Head Quartered where in Southhampton but they had a satellite office in the North. I worked there for close to four years, mainly on retail projects for their main client. I learnt Revit really well at this time and I discovered DynamoBIM at this time. I used it a bit during my work there but as you will see below, outside of work I was really experimenting with this new tool.
2015/03 – 2015/07
DynamoBIM YouTube Channel
The link to my YouTube channel is at the bottom of the page and there is also a link to Vimeo where I have other videos made latter when working at GSS. As I stated above I began my DynamoBIM learning journey at HGP and my first DynamoBIM YouTube video was of a design by HGP. I tried to push the software to it’s limits modelling complex designs of my own and famous Architects (credited). Later on I would begin to teach this software to my colleagues and others online.
2017/09 – 2018/04
Freelance DynamoBIM Consultant
I began to offer my services to teach DynamoBIM but also to solve problems with it during this time. I was lucky to get a chance to attempt to solve some real-life problems with DynamoBIM during this time.
2018/04 – 2022/06
GSS Architecture, Harrogate Office, Architectural Technologist
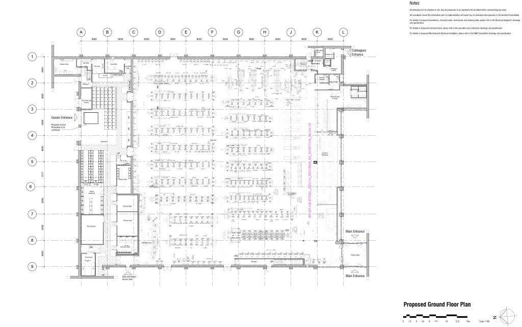
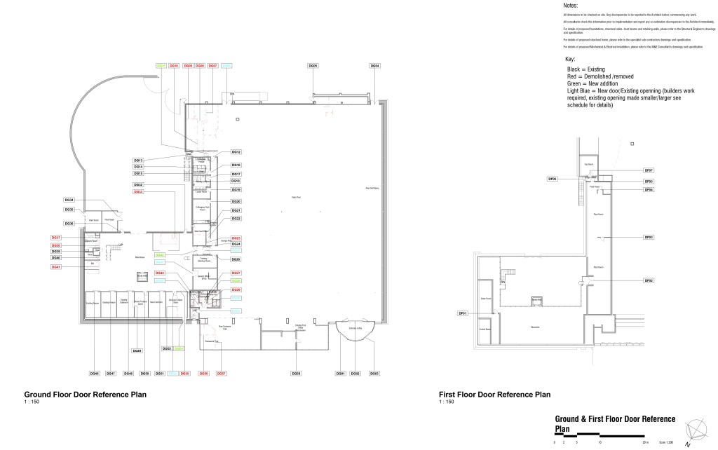
I had a successful time at HGP in Leeds but when it felt the right time to progress my career in different sectors, I was very lucky to find my next and best Architecture job at GSSArchitecture. I worked here for close to four years and during my time I became a Chartered Architectural Technologist (02/2021). I used DynamoBIM often and I taught many classes to colleagues on Dynamo and Revit. I was involved in many projects in many different design stages. I wrote LinkedIn articles about the different things I was involved in. These articles can be found on the blog section of this website. I really enjoyed working on many different exciting projects. One major project I was involved in was Durham University Music Rooms. I completed the Tender and Construction stage drawing packages. This project won ‘Project of the Year’ at the GSS ‘Oscars’ awards ceremony.
2020 – 2021
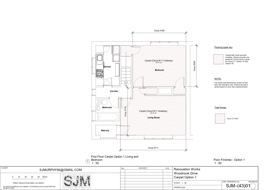
Apartment Refurbishment Personal Project, Leeds
I purchased my first property during this time and used my advanced Revit skills to help produce various drawings for it’s refurbishment.
2018 – 2022
LinkedIn Articles and InHouse CPDs
In total I wrote 14 articles on LinkedIn about projects I was involved in or about technology and Architecture. They are now available as blog posts on this website. In total I think they have been viewed by around a hundred people on LinkedIn and I believe they have helped a few people learn about these emerging tools in the Architecture software tool box.
2020 – 2020
Architecture Social Online Covid Lockdown Lessons
During the Covid Lockdown I by chance got connected witht the Architecture Social website. I offered to do Revit and Dynamo classes for the students on that site looking for work. They are still available on their website. https://architecturesocial.com/uk-england-greater-london/company/architecture-social/#courses
2020/06 – 2020/09
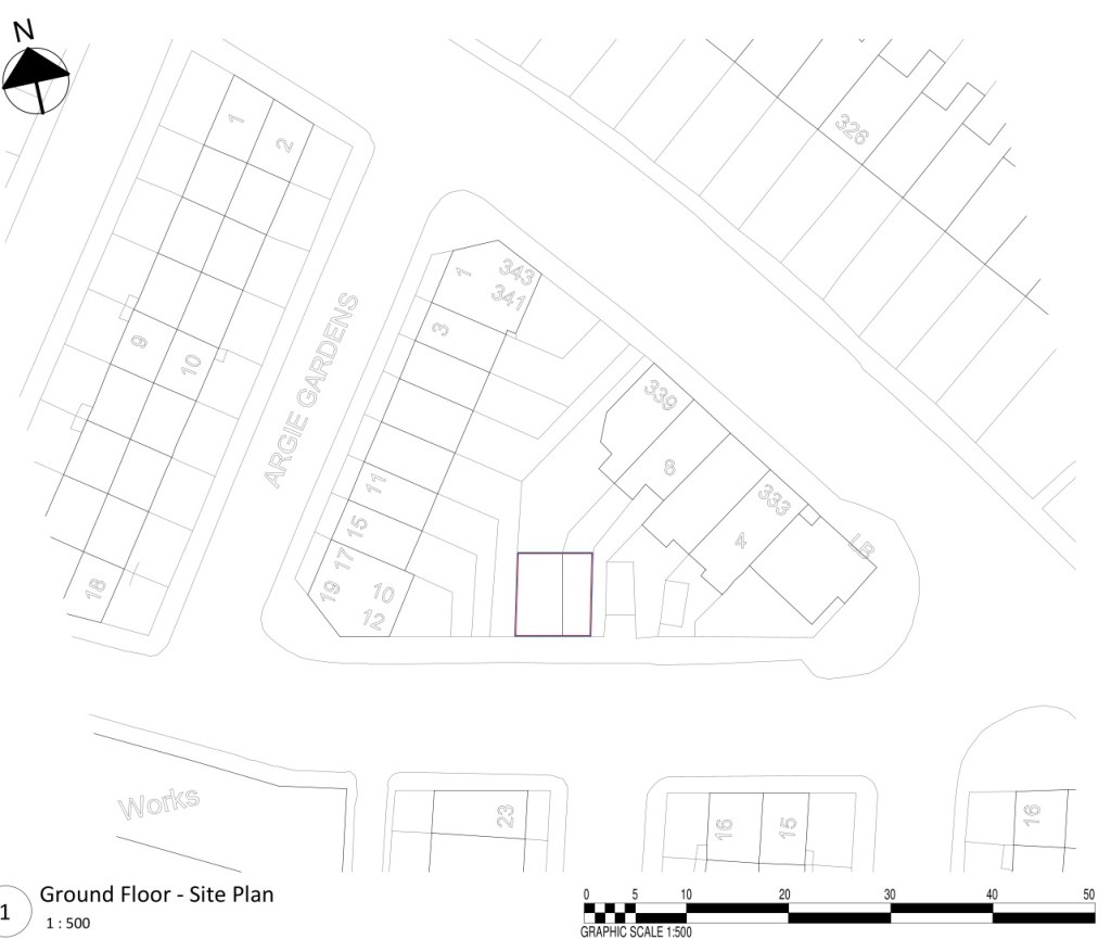
Lockdown Garage Conversion Project
With more free time during the Covid lockdown, I used it to fill a gap in my experience, producing a full set of planning drawings for one of my very own designs. I found an abandoned building near my house and generated a design for converting it to a dwelling. I later used this Revit model to help me teach Revit phases in various classes.
2022/08 – 2023/09
HTC Architects, Leeds, Architectural Technologist
My time here was mixed I met some great people and learnt a new software (Vectorworks) but on the whole this was not a great job. Nothing against the company just not a good fit for me. I learnt the Marrionette visual programming language early on in my time here but I din’t get the chance to use it on a real project. I did learn that Vectorworks is a great way to do BIM on a budget. It has some great features and the way it handles ‘Views’ and ‘Sheets’ is my opinion better that Revit.
2023/09 – 2024/06
Director SJM Studio Leeds
I am no longer an employee and looking for the next opportunity to be involed in the AEC industry. Architecture and Arch Softwares are my passion.
2024/06 – Current
Chartered Architectural Technologist
I am now employed by P.B. Architecture and working on Residential Architectural designs at the Planning and Construction stages.




























































































































































































































































































































































